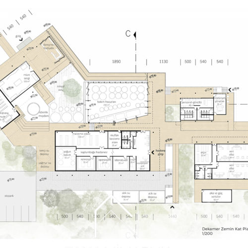
İZTUZU PLAJI REHABİLİTASYON MERKEZİ

İztuzu Kumsalı Deniz Kaplumbağaları Bakım İstasyonu, MUĞLA, 2019

Tasarım

Projenin tasarımı, güneş ve rüzgar enerjilerini gerçek anlamda kullanan pasif ve aktif sistemlerle ekolojik mühendisliğin bir arada uygulanmasını hedeflemiştir.  Güneş ve rüzgârın şekil verdiği binalar, yenilenebilir enerjileri nasıl kullanılacağını gösterirken sosyal ve çevresel bağlamda da katma değer oluşturmuştur. Yenilenebilir mimarlık ürünleri ile ışığı ve havayı en yararlı şekilde kullanan, ince kesitli, ekolojik bir kabuğu olan, bulunduğu çevreye saygılı, bölgenin ruhuna uyum sağlayan ve  estetik değer oluşturan bir tasarım hedeflenmiştir.